Reflect

المصمم المعماري: ريفلِكت للاستشارات الهندسية
نوع المشروع: N/A
العميل: مستثمر سكني خاص
الشروط: التصميم المعماري المتكامل، التصميم الداخلي والتخطيط العام
رؤية المشروع: عمارة مودرن بخصوصية تامة واتصال مع الطبيعة
التاريخ: 12/01/2023

Design in Details

الرؤية المعمارية والانسيابية الفراغية

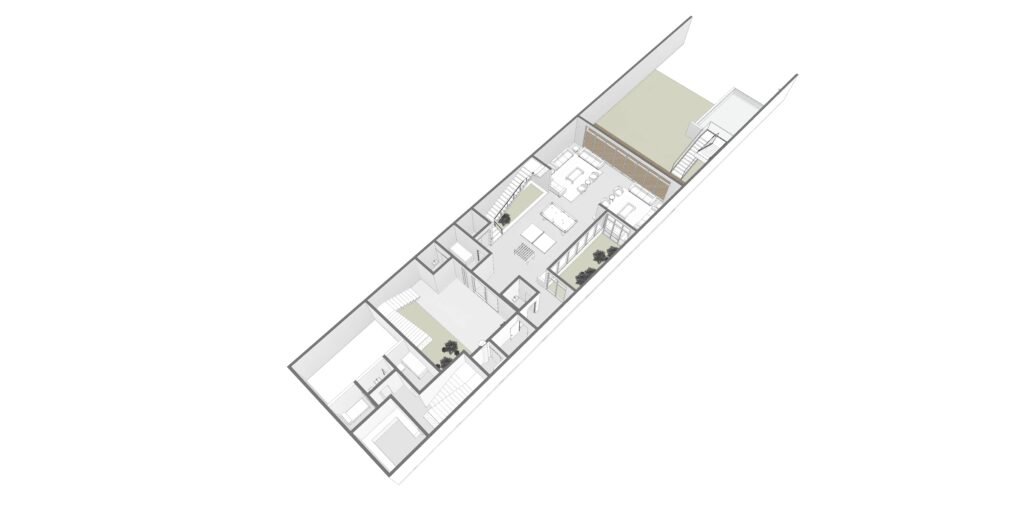
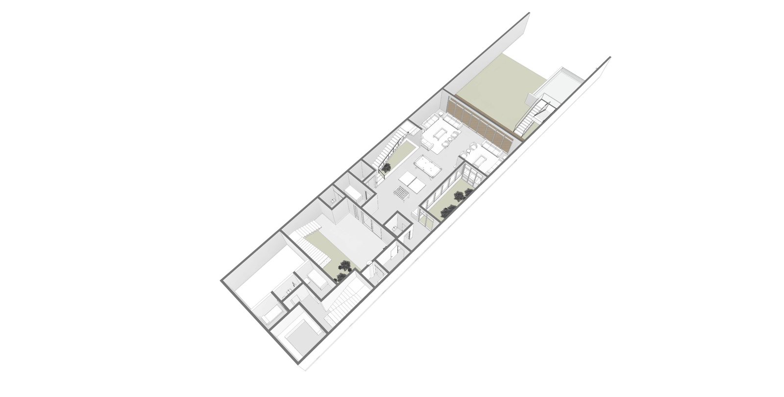
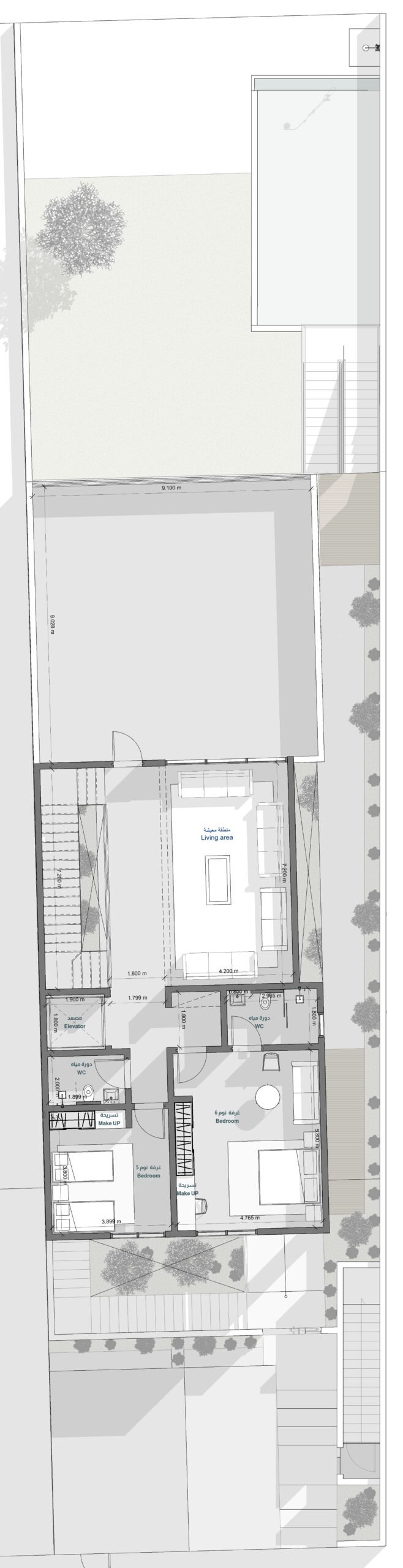
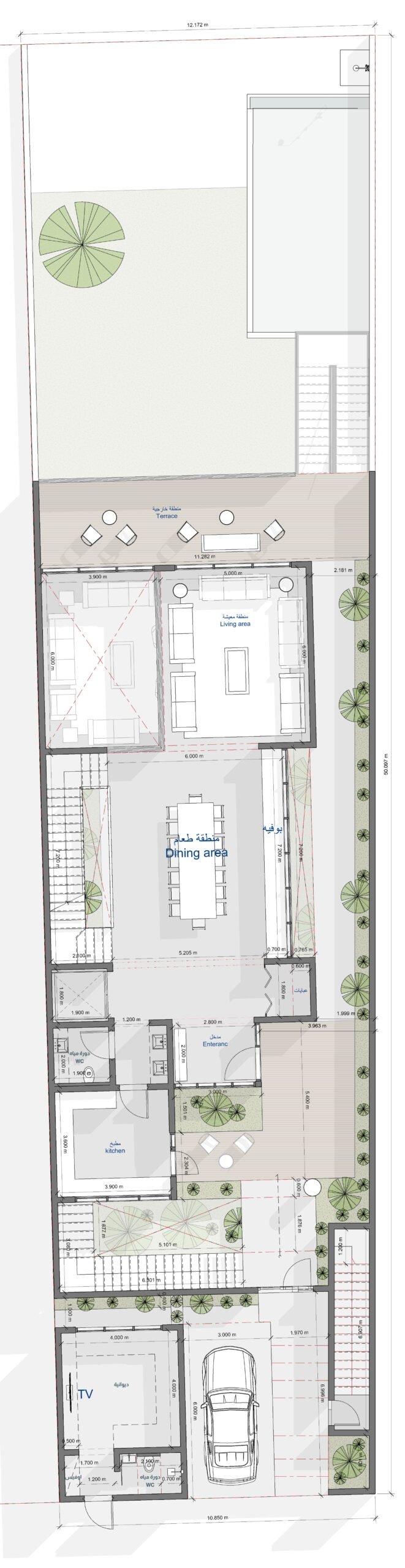
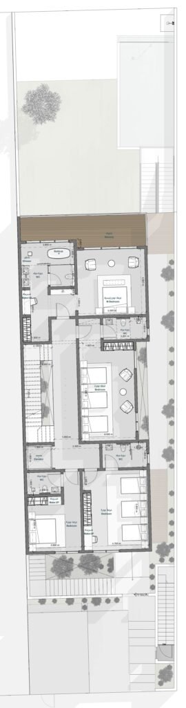
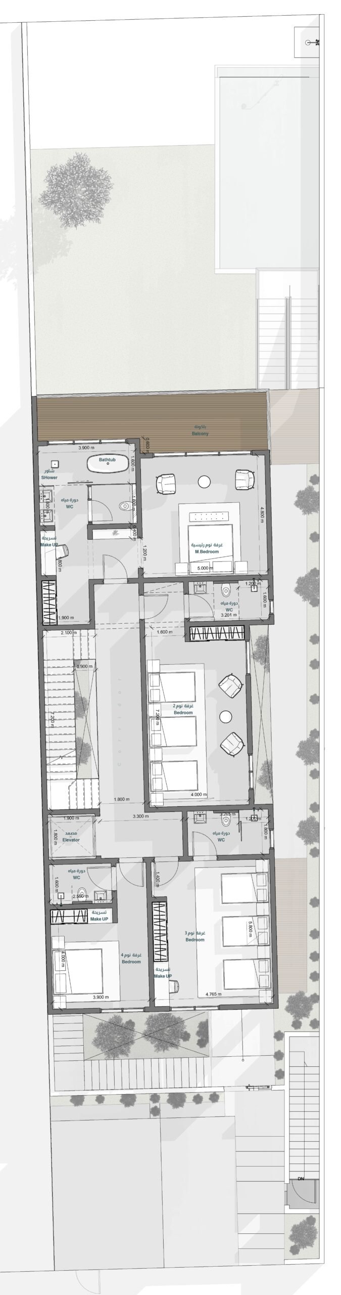
صُمم هذا المسكن بناءً على مفهوم الاتصال الرأسي والشفافية الداخلية. وتكشف المخططات عن توزيع متطور لمساحات المعيشة المفتوحة التي تنتقل بانسيابية إلى الأفنية الخاصة وحدائق التراس، مما يضمن نفاذ الضوء الطبيعي إلى عمق المنزل مع الحفاظ على الخصوصية التامة عن الشارع.

أبرز سمات التصميم:

     

  • تدرج الكتل المعمارية: الواجهة عبارة عن تكوين نحتي من الكتل البارزة (Cantilevered) التي توفر ظلالاً طبيعية للفتحات الزجاجية الواسعة.
  •  

  • الفراغات مزدوجة الارتفاع: يتميز التصميم الداخلي بمساحات معيشة درامية بارتفاع مزدوج وسلالم زجاجية، مما يخلق شعوراً قوياً بالشموخ والاتساع.
  •  

  • التكيف الحراري: تم استخدام زجاج حراري مزدوج عالي الأداء مع كواسر ضوء خشبية موزعة استراتيجياً لتنظيم الحرارة دون المساس بالإطلالات.
  •  

  • جلسات غائرة: تم الارتقاء بالمعيشة الخارجية عبر استخدام جلسات الحدائق الغائرة وتراسات السطح التي تعمل كملاذات خاصة.

المواد والملمس:

العنصر المواصفات الفنية
الهيكل الرئيسي خرسانة مطبوعة (Board-Formed) ولياسة بيضاء نقية
الواجهات الزجاجية زجاج حراري مزدوج يمتد من الأرض حتى السقف
تنسيق المواقع حدائق عمودية مدمجة وعناصر مائية (Infinity)
680 m² إجمالي مساحة البناء

Incredible Result

يعد مشروع 'المونوليث: سكن الخصوصية' تجربة جريئة في فلسفة البساطة الهندسية والخصوصية الفراغية. هذه التحفة المعمارية تعتمد على تداخل الكتل لخلق مسكن يجمع بين الرسوخ والجمال الأخاذ. ومن خلال دمج ملمس الخرسانة الخام مع شرائح الخشب الدافئة والواجهات الزجاجية الواسعة، يحقق التصميم توازناً دقيقاً بين القوة الإنشائية ودفء المسكن، ليوفر ملاذاً منعزلاً في قلب المدينة.

Please add the YouTube video URL for the project!
Please add the Panorama Image for the project!
Related Projects

Explore our project showcase

We Shape Interior Designs, Crafting Timeless and Inspiring Spaces

contact@reflect.com.sa