Reflect

المصمم المعماري: Reflect Architecture
نوع المشروع: N/A
العميل: مطور عقاري
الشروط: تصميم معماري، مساقط أفقية، وقطاعات تنفيذية
رؤية المشروع: الفناء الداخلي والترابط الرأسي
التاريخ: 09/09/2022

Design in Details

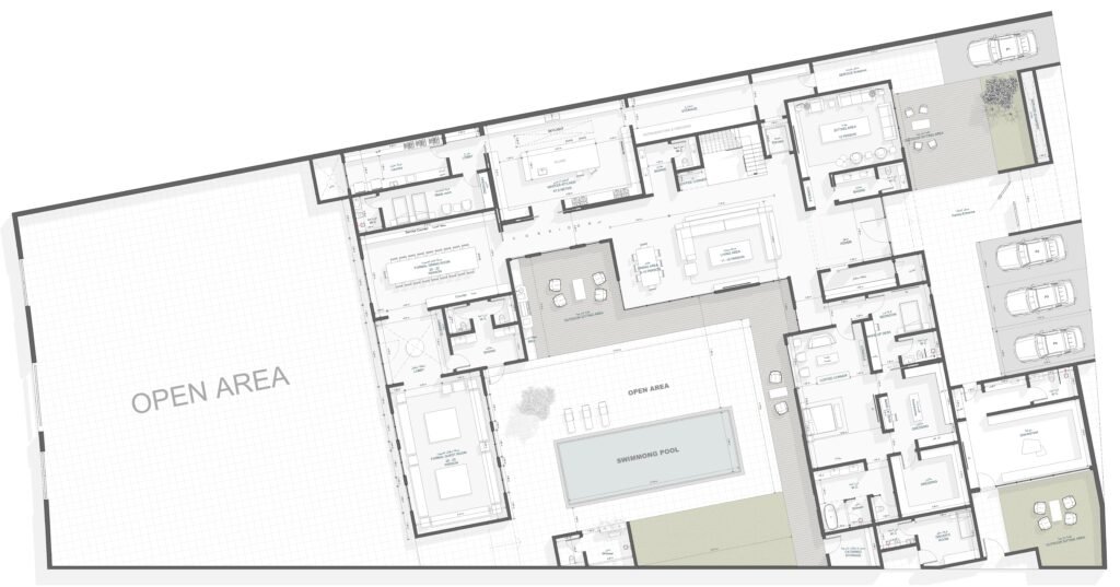
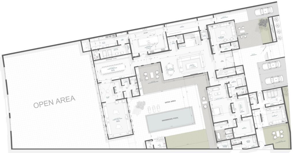
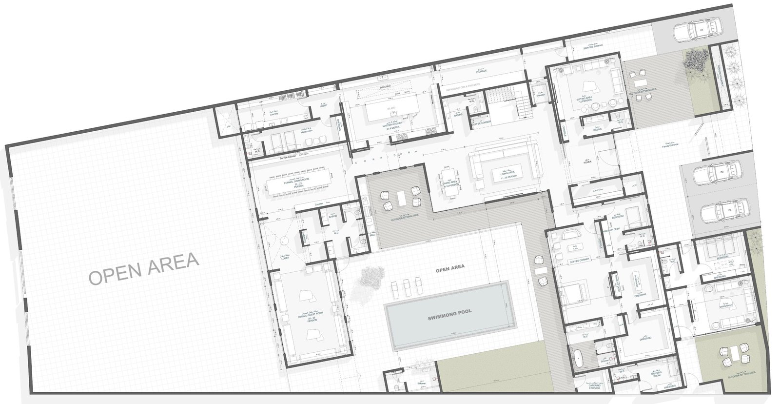
التحليل المكاني وفلسفة الفناء الداخلي

يعتمد هذا التخطيط المعماري على مفهوم الترابط الرأسي والأفقي. من خلال القطاعات الهندسية المعروضة، يتضح كيف تم توجيه كافة الفراغات المعيشية الرئيسية لتطل مباشرة على الفناء الداخلي والمسبح، مما يحول التركيز من الواجهات الخارجية إلى بيئة داخلية غنية ومستقلة.

أبرز مميزات التخطيط والقطاعات:

  • القطاعات الرأسية (Sections): توضح القطاعات المعمارية الارتفاعات الصافية للأدوار، وعلاقة السلم الداخلي المفتوح بمسارات الحركة، مما يعطي تصويراً دقيقاً لحجم الفراغ (Volume).
  • الفناء والمسبح (Courtyard & Pool): يعمل الفناء الداخلي كمنظم حراري ومصدر رئيسي للإضاءة الطبيعية، حيث تلتف حوله الغرف لضمان إطلالة مائية هادئة.
  • الخصوصية الموجهة: تصميم مثالي للأراضي المكتظة، حيث يوفر الفناء الداخلي انفتاحاً بصرياً كاملاً لأهل البيت دون انكشاف على الجوار.

تفاصيل المخططات:

عنصر التصميم الوصف التقني
المساقط الأفقية (Plans) تخطيط يلتف حول فناء وسطي (U-Shape أو O-Shape)
المقاطع الهندسية (Sections) توضيح مناسيب الارتفاعات، حركة السلالم، وعلاقة الكتلة بالفراغ المفتوح
الاستراتيجية البيئية تهوية تقاطعية (Cross Ventilation) وإضاءة غير مباشرة عبر الفناء
120 m² مساحة الفناء الداخلي

Incredible Result

يسلط هذا المشروع الضوء على التحليل المكاني الدقيق والعلاقات الرأسية للفراغات من خلال المقاطع الهندسية (Sections) والمساقط الأفقية. يعتمد التصميم على فكرة 'الفناء الداخلي' (Courtyard) الذي يضم مسبحاً خاصاً، ليكون هذا الفناء هو القلب النابض للمنزل ومحور الحركة البصرية. تبرز القطاعات الرأسية كيفية ترابط الأدوار المختلفة وحركة السلالم حول هذا الفناء، مما يضمن تدفق الإضاءة الطبيعية والتهوية المثالية لكافة أرجاء الفيلا، مع توفير خصوصية تامة تلبي متطلبات العائلة.

Please add the YouTube video URL for the project!
Please add the Panorama Image for the project!
Site / الموقع
Final Project
< >
Related Projects

Explore our project showcase

We Shape Interior Designs, Crafting Timeless and Inspiring Spaces

contact@reflect.com.sa