المصمم المعماري:
Reflect Architecture
نوع المشروع:
N/A
العميل:
مطور عقاري
الشروط:
تصميم معماري للعمائر السكنية، واجهات خارجية، ومساقط أفقية
رؤية المشروع:
العمارة الرأسية واستغلال الأراضي الركنية
التاريخ:
04/18/2024

Design in Details
فلسفة العمارة الرأسية واستغلال النواصي
يعتمد تصميم هذا المبنى السكني على تحقيق التوازن الأمثل بين الكثافة السكانية وجودة الحياة. تم توجيه الكتل المعمارية لفتح زوايا الرؤية لأكبر عدد ممكن من الوحدات السكنية، مع الاعتماد على الشرفات العميقة لتوفير الظل الذاتي وتلطيف الواجهات المعرضة للشمس.
أبرز مميزات التصميم المعماري:
- الشرفات الركنية (Corner Balconies): تمتد على زوايا المبنى لتوفر إطلالات واسعة ومساحات جلوس خارجية لكل شقة، مزودة بأحواض زراعية تضفي طابعاً بيئياً مستداماً على الواجهة.
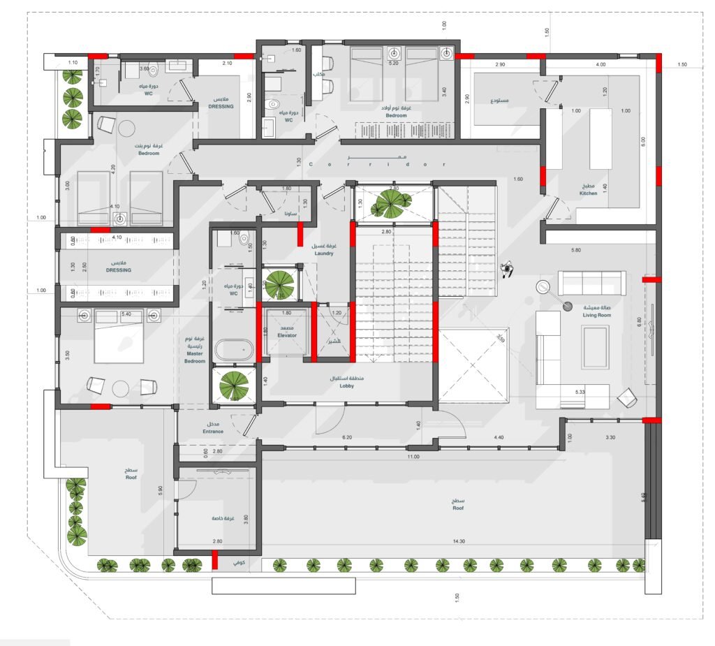
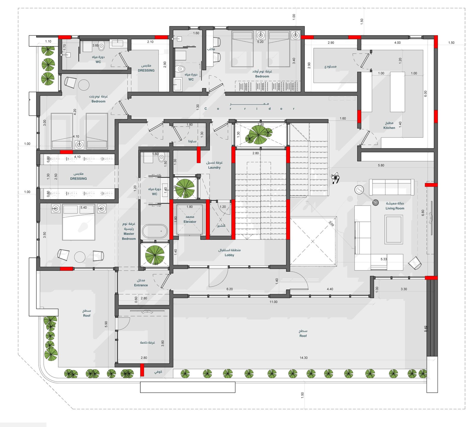
- المساقط الأفقية (Floor Plans): تخطيط طابقي متكامل يوضح تقسيم الوحدات السكنية بكفاءة عالية، مع ضمان تهوية متقاطعة وإضاءة طبيعية لكافة الفراغات المعيشية وتقليل مساحات الممرات المهدرة.
- التباين اللوني والخامات: استخدام طلاء أبيض ناصع يتخلله تكسيات طولية داكنة (Louvers)، مما يعطي المبنى هوية عصرية صارمة وأنيقة في نفس الوقت.
- إضاءة الواجهات (Night Illumination): نظام إضاءة ليلي مدروس يبرز الخطوط الأفقية للشرفات ويزيد من فخامة المبنى المعمارية خلال فترة المساء.
المواصفات التقنية للمبنى:
| عنصر المشروع | الوصف |
|---|---|
| نوع المبنى | عمارة سكنية متعددة الطوابق والوحدات (Apartment Complex) |
| التشطيب الخارجي | دهانات مقاومة للحرارة، زجاج عاكس، وتكسيات معدنية أو خشبية داكنة |
| التخطيط الداخلي | مساقط أفقية مرنة تفصل بين مناطق الاستقبال والمناطق الخاصة داخل الشقق |
مبنى سكني متعدد الوحدات
تصنيف المشروع
Incredible Result
يمثل هذا المشروع نموذجاً متطوراً للعمارة السكنية متعددة الطوابق، مستفيداً بذكاء من موقعه المميز على ناصية الشارع. يتميز التصميم بشرفات ركنية ممتدة (Wrap-around Balconies) تدمج الطبيعة الخضراء في كل طابق، مما يخلق متنفساً حيوياً لكل وحدة سكنية ويخفف من حدة الكتل الخرسانية. تبرز الواجهات تبايناً أنيقاً بين الكتل البيضاء الصريحة والتكسيات الداكنة، بينما توضح المساقط الأفقية المرفقة توزيعاً عبقرياً للشقق السكنية يضمن الخصوصية والإطلالة البانورامية المثالية لكل عائلة.
Related Projects
Explore our project showcase
-
المملكة العربية السعودية
-
السعودية / منطقة الخليج العربي2023
-
المراكز الحضرية - السعودية والخليج2025
-
القلب العمراني - المملكة العربية السعودية / دول الخليج2025