المصمم المعماري:
Reflect Architecture
نوع المشروع:
N/A
العميل:
مطور عقاري
الشروط:
تصميم معماري، تخطيط مساحات
رؤية المشروع:
التوزيع الوظيفي الأمثل ودمج الطبيعة الداخلية
التاريخ:
03/08/2024

Design in Details
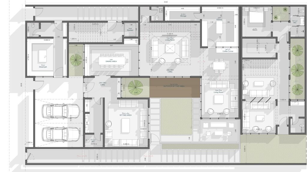
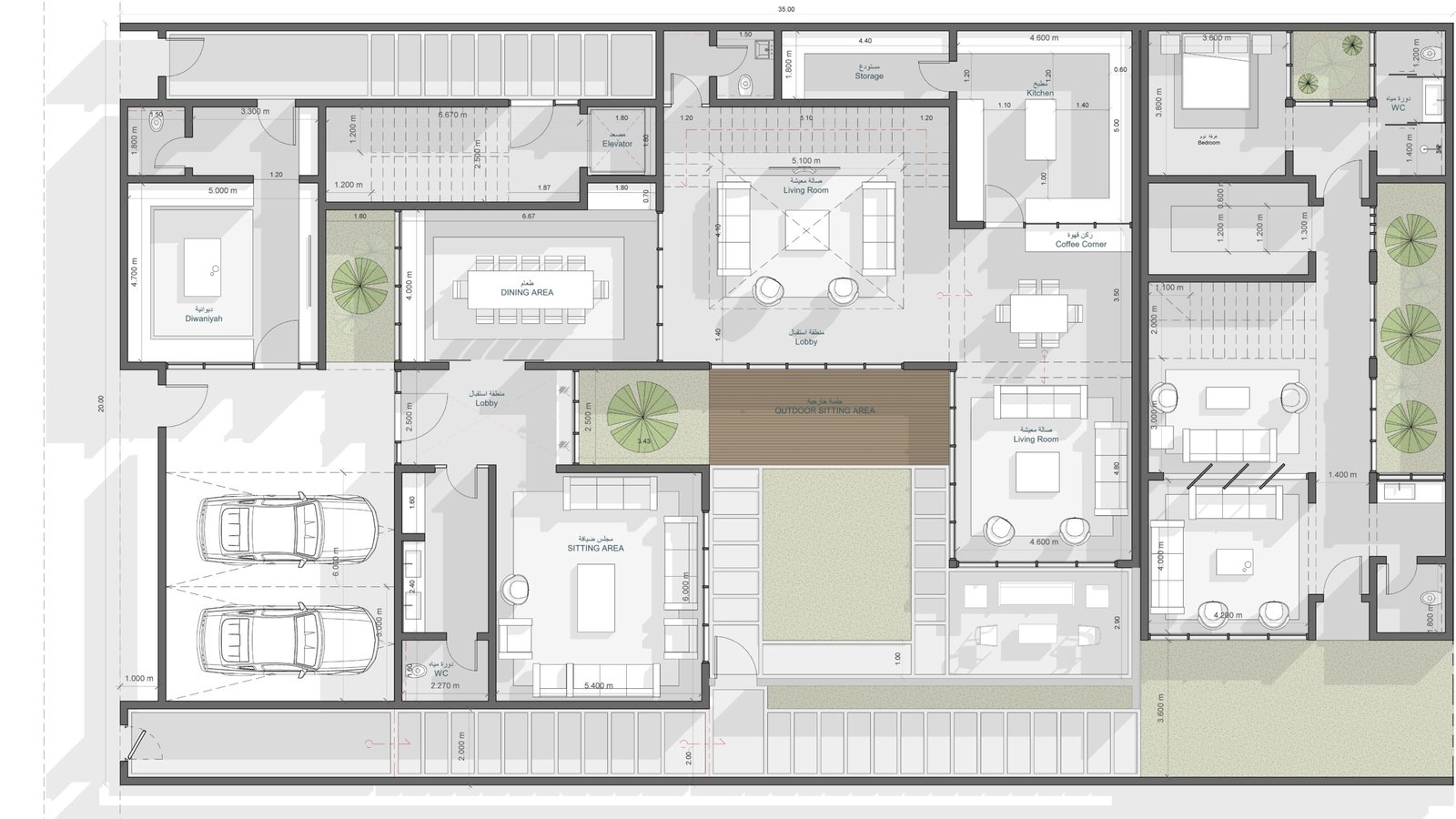
فلسفة التخطيط المكاني والتوزيع الوظيفي
يعتمد نجاح أي تصميم معماري على جودة المساقط الأفقية (Floor Plans). في هذا المشروع، تم التركيز على خلق تدفق حركي سلس بين الفراغات مع الحفاظ على تسلسل منطقي يراعي متطلبات الخصوصية في الثقافة المحلية.
أبرز مميزات المخطط المعماري:
- التنطيق الذكي (Smart Zoning): فصل واضح بين مناطق المعيشة اليومية، غرف النوم الخاصة، ومناطق الخدمات لتجنب تداخل مسارات الحركة.
- دمج الطبيعة بالداخل: توزيع أحواض زراعية ومساحات خضراء صغيرة داخل المخطط لتعمل كفواصل بصرية طبيعية ومصادر للإضاءة.
- المرونة المكانية: غرف معيشة مفتوحة تتصل مباشرة بالتراسات لتعزيز الشعور بالاتساع، مع إمكانية إغلاقها عند الحاجة للخصوصية.
- أجنحة النوم: تصميم غرف النوم كأجنحة مستقلة مزودة بحمامات خاصة ومساحات تخزين (Walk-in Closets) مدمجة بعناية.
تفاصيل الفراغات الداخلية:
| المنطقة | الوصف الوظيفي |
|---|---|
| المناطق العامة | مجالس وغرف معيشة واسعة متصلة بشرفات خارجية |
| المناطق الخاصة | أجنحة نوم موزعة لضمان الهدوء والإطلالات الجيدة |
| مناطق الخدمات | مطابخ، حمامات، وممرات حركة مصممة بكفاءة عالية لتقليل المساحات المهدرة |
250 m²
مساحة الدور التقريبية
Incredible Result
يستعرض هذا المشروع التخطيط المعماري والمساقط الأفقية الدقيقة لفيلا سكنية مصممة لتلبية أعلى معايير الراحة والخصوصية العائلية. يعكس التوزيع الداخلي استغلالاً ذكياً للمساحات، حيث يتم دمج المناطق الخضراء (Indoor Planters & Courtyards) بسلاسة مع مساحات المعيشة والممرات لتوفير إضاءة طبيعية وتهوية ممتازة. يضمن هذا التخطيط فصلاً مثالياً بين مناطق الاستقبال والمناطق العائلية الخاصة، مما يخلق بيئة سكنية متوازنة، عملية، وتتسم بالرقي.
Related Projects
Explore our project showcase
-
المملكة العربية السعودية
-
السعودية / منطقة الخليج العربي2023
-
المراكز الحضرية - السعودية والخليج2025
-
القلب العمراني - المملكة العربية السعودية / دول الخليج2025