Reflect

المصمم المعماري: Reflect Architecture
نوع المشروع: N/A
العميل: Private Urban Developer
الشروط: Architectural Planning & Interior Layout
رؤية المشروع: Linear Flow & Side-Setback Activation
التاريخ: 07/10/2024

Design in Details

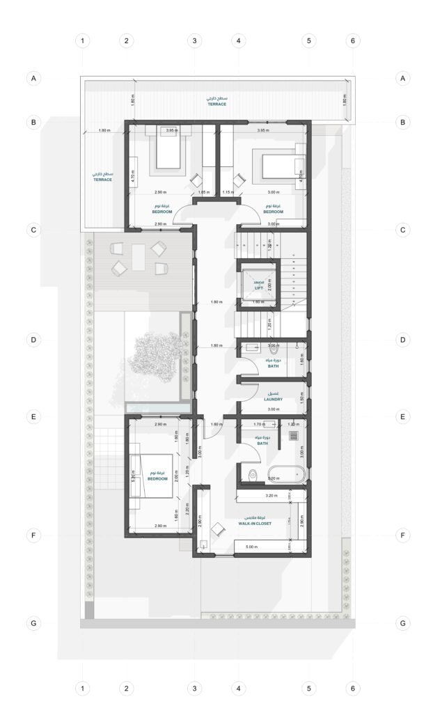
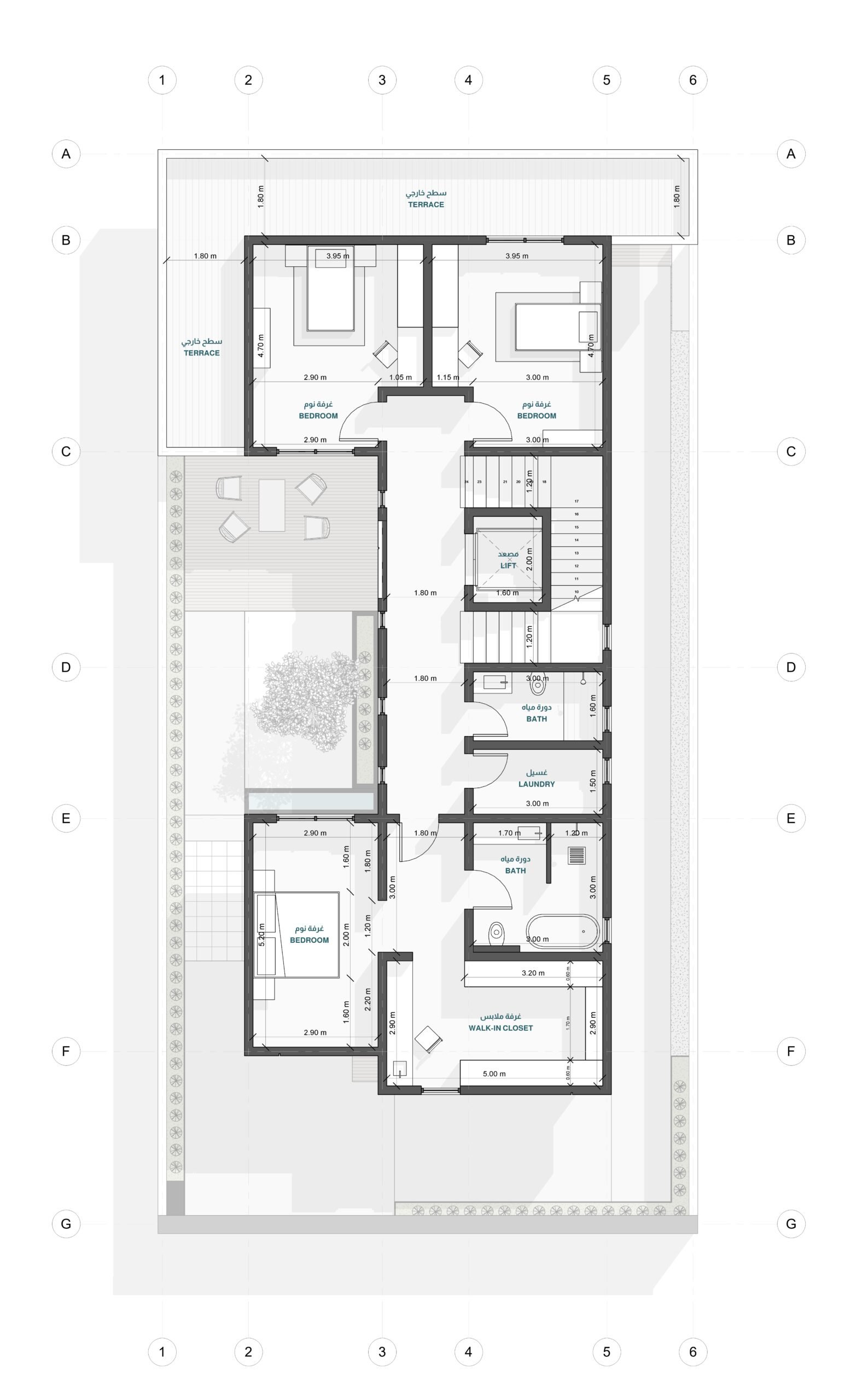
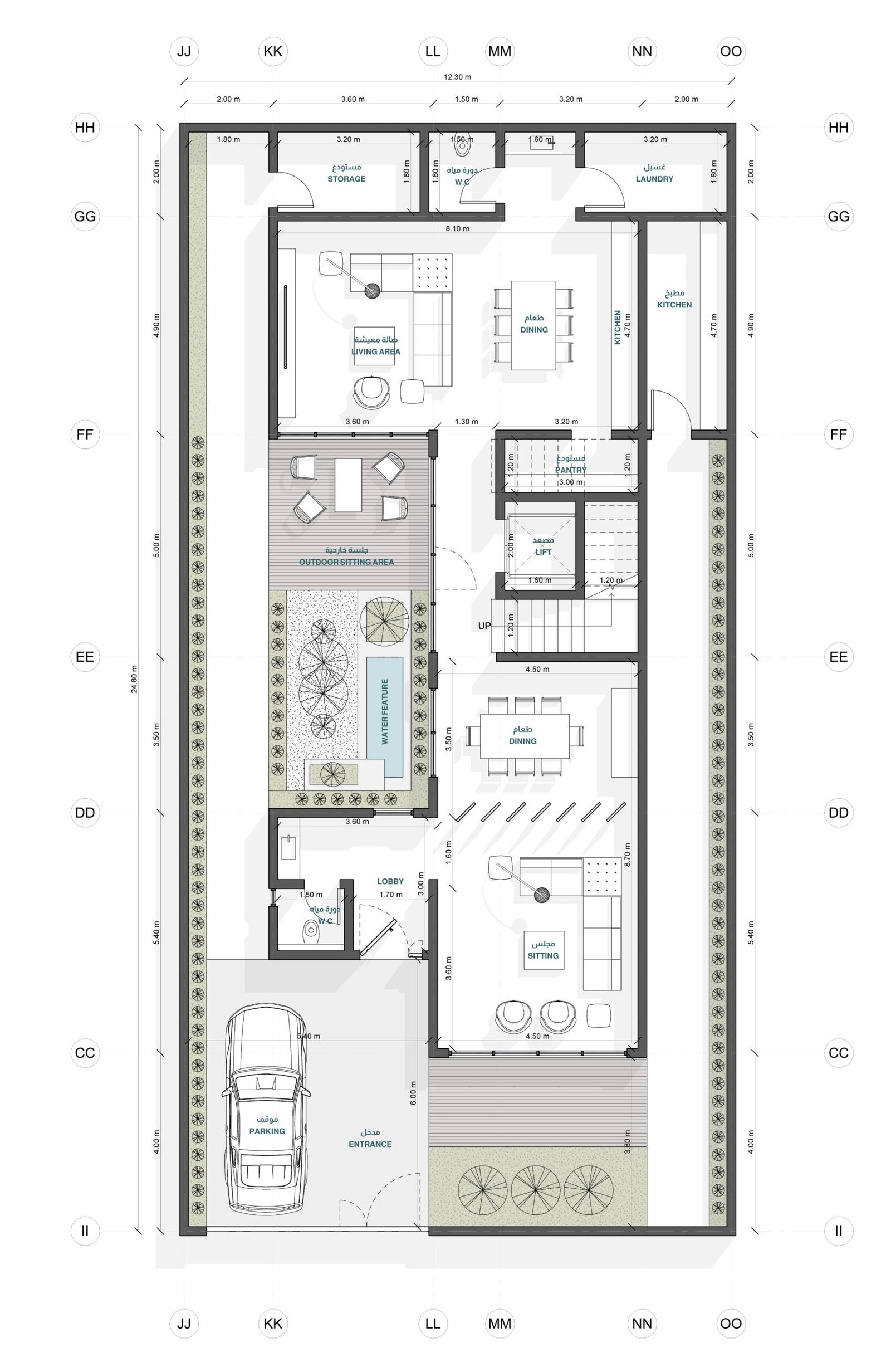
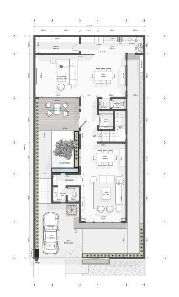
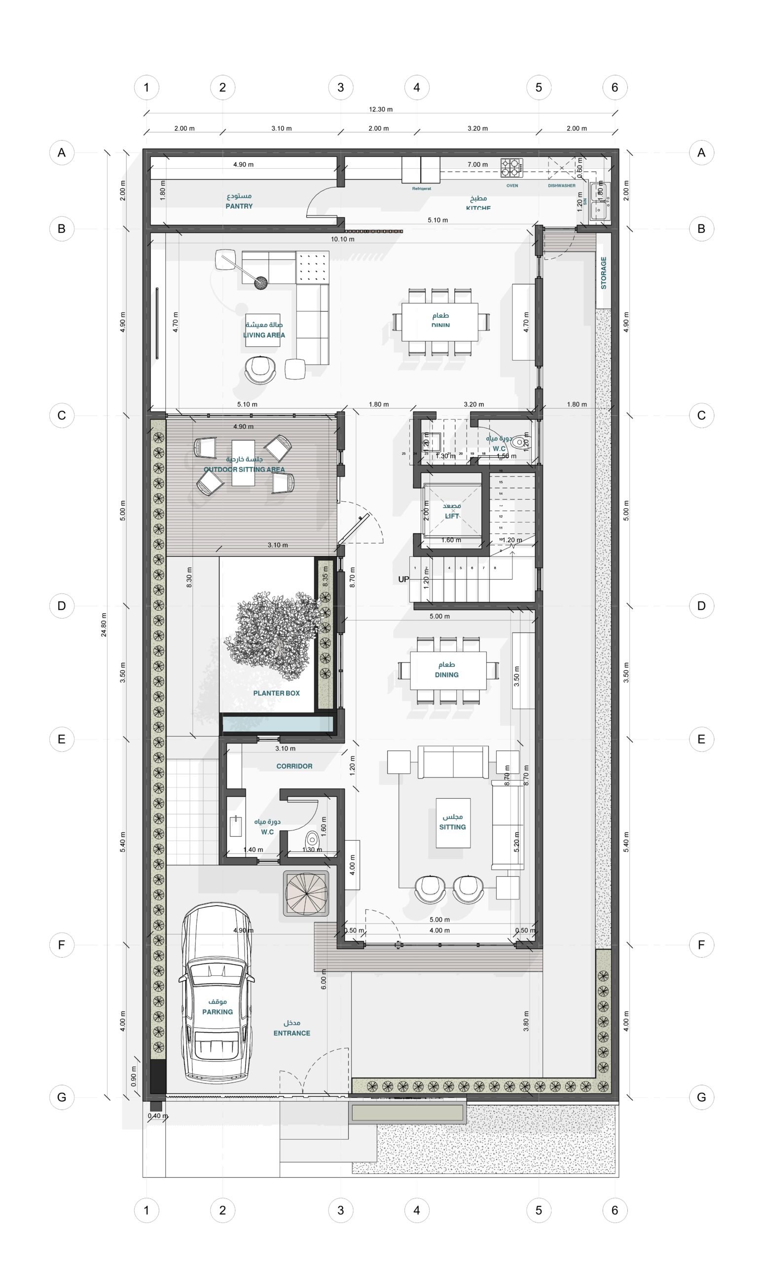
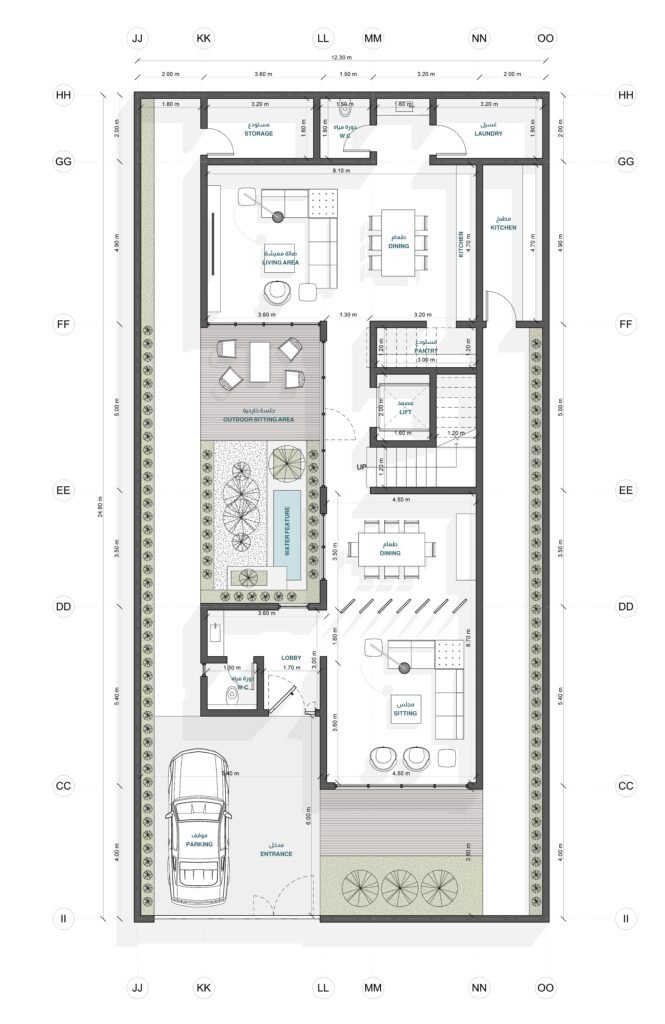
استراتيجية التوزيع الفراغي الطولي

يعالج هذا المشروع تحديات الأراضي العميقة والضيقة من خلال مفهوم دمج الارتداد الجانبي. فبدلاً من الاعتماد على الفناء الخلفي التقليدي، يعتمد التصميم على الارتداد الجانبي كعنصر بصري أساسي، مما يخلق ممراً أخضراً يمتد موازياً لمحور الحركة الرئيسي في المنزل.

أهم مميزات التصميم:

  • تقسيم الخصوصية: يعتمد المخطط على فصل صارم بين "مجلس الضيوف" في المقدمة، ومناطق "المعيشة والطعام العائلية" في الخلف، يربط بينهما قلب مركزي للحركة.
  • دمج الداخل بالخارج: تمتد الأبواب الزجاجية المنزلقة على طول الواجهة الجانبية، مما يسمح لغرف الطعام والمعيشة بالانفتاح المباشر على منطقة الجلوس الخارجية وجلسة المسبح.
  • قلب الحركة المركزي: يعمل المصعد والدرج كنقطة ارتكاز إنشائية تتوسط المنزل، لتوزيع الحركة بكفاءة بين الطوابق دون استهلاك مساحات المعيشة الثمينة.
  • كفاءة الخدمات: تم وضع المطبخ، والمصبغة، والمخازن في مناطق جانبية وخلفية مدروسة، لضمان عملها بكفاءة مع بقائها غير مرئية من مناطق الضيافة والمعيشة الرئيسية.

التكوين الفراغي:

المنطقة الوظيفة
المنطقة الأمامية استقبال الضيوف وبهو المدخل الرئيسي
المنطقة الخلفية معيشة عائلية مفتوحة ومنطقة تناول الطعام
المنطقة الجانبية حديقة طولية وعناصر مائية
240 m² Ground Floor Area

Incredible Result

The Linear Courtyard Residence is an architectural masterclass in optimizing narrow urban lots. The design creates a 'Longitudinal Sanctuary,' where the interior spaces are organized along a continuous side garden and linear water feature. By orienting the main family dining and living areas towards this private outdoor strip, the home maximizes natural light and visual depth, turning a constrained footprint into an expansive living experience.

Please add the YouTube video URL for the project!
Please add the Panorama Image for the project!
Related Projects

Explore our project showcase

We Shape Interior Designs, Crafting Timeless and Inspiring Spaces

contact@reflect.com.sa